راهنمای خرید
نحوه اندازهگیری فضا
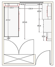
برای اندازه گیری و پلان برداری فضا، ابتدا یک شکل کلی از فضای مورد نظر خود را به صورت دید از نمای بالا Top View بر روی کاغذ ترسیم نمایید.
اندازه تک تک دیوار های فضای خود + اندازه پنجره ویا درب بالکن + فضای کمد دیواری و مقدار باز شو درب آن + شوفاژ و یا سایر وسایل تهویه هوای فضای مورد نظر را روی شکل فرضی مشخص نمایید.
توجه داشته باشد که :
۱ - در اندازه گیری دیوار ها ، اندازه ها از قرنیز دیوار ها در نظر گرفته شود.
۲ - اگر در فضای شما تو رفتگی وجود دارد برای اندازه گیری آن حتماً باید از 3 نقطه دیوار (پایین، وسط، بالا) اندازه گیری نمایید وکمترین اندازه را مد نظر قرار دهید.
۳ - باز شو درب ورودی و کمد دیواری اتاق را در نظر بگیرید.
۴ - در نظر داشته باشید که کلید و پریز مورد استفاده، پشت قطعات انتخابی شما قرار نگیرد.
۵ - اگر فضای شما بسیار کوچک است، توصیه می شود اندازه گذاری خود را بصورت مقیاس مشخص نمایید.
۶ - جهت چیدمان فضـا با توجه به ابعـاد فضای مورد نظر، شـما می توانید قطعـات مورد نیاز خود را انتـخاب نمایید. دقت داشته باشید که پس از انتخاب کد ها، فضای باقی مانده جهت رفت و آمد حداقل یک نفر قابل استفاده باشد.
توجه داشته باشید که :
۱ - چیدمان فضای خود را با رعایت حداقل ۱۵ سانت از شوفاژ و یا هر وسیله گرمایی موجود، در نظر داشته باشید.
۲ - تعیین جهت برخی از کد ها و جهت باز شو درب ها قبل از ساخت ضروری است.
۳ - قطعات مجموعه های نیما چوب کاملاً مستقل از یکدیگر میباشد، لذا نیازی به بستن آنها به یکدیگر و یا اتصال به دیوار نمیباشد. همچنین شما می توانید قطعات را جدا از هم نیز چیدمان نمایید.
در صورت تمایل شما به انجام اندازه گیری از طرف تیم طراحی و پلان برداری مجموعه نیما چوب، می توانید از طریق تماس با واحد هماهنگی مجموعه نیما چوب، در خواست خود را اعلام فرمایید. هزینه این بخش، با توجه به شرایط و ضوابط واحد طراحی مجموعه، به شما اعلام خواهد شد.
